El jumbo empernador hidráulico HT92-D (altura mínima de sección transversal: 2.8m) está diseñado para operaciones de empernado eficientes en túneles compactos y minas subterráneas de metal. Su mecanismo de avance especial permite un empernado fiable en túneles de hasta 2.8m × 2.8m. Equipado con un avanzado sistema de perforación electrohidráulico y un dispositivo antiatasco, el jumbo empernador hidráulico ofrece alta velocidad de perforación, alta eficiencia y rendimiento estable. Su diseño compacto y de gran maniobrabilidad garantiza un funcionamiento fluido en espacios reducidos, mejorando tanto las condiciones de trabajo como la calidad general de la construcción.
| Jumbo hidráulico para perforación | Sección transversal adecuada | 2800×2800-3500×3500mm |
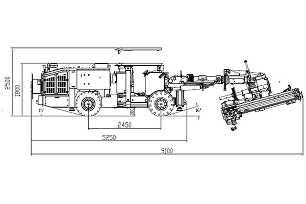
| Longitud | 9100mm | |
| Ancho | 1500mm | |
| Altura (con el techo bajado) | 1800mm | |
| Altura (techo arriba) | 2500mm | |
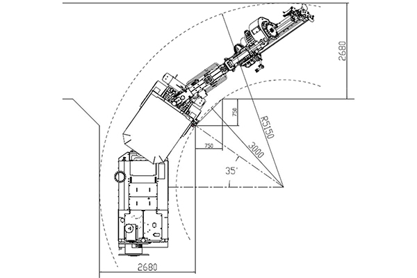
| GYTM412LD | Radio de giro mínimo | Interior 3000 mm / exterior 5150 mm |
| Gradeabilidad | 14° | |
| Velocidad de viaje | 3.8km/h | |
| Peso total | 12000kg | |
| Distancia al suelo | 280mm | |
| Perforadora hidráulica | Modelo | RC1200 |
| Potencia de percusión | 14kW | |
| Frecuencia de percusión | 100Hz | |
| Presión máxima de impacto | 180bar | |
| Sistema de rotación | Rotación independiente | |
| Vástago | R32 | |
| Tamaño del agujero | 32-45mm | |
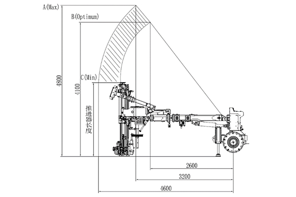
| Sistema de alimentación | Longitud de alimentación | 2780mm |
| Longitud del perno de fijación dividido | 1800mm | |
| Presión de trabajo | ≤10MPa | |
| Fuerza de alimentación | 10kN | |
| Ángulo de inclinación de la alimentación | +80°-25° | |
| Ángulo de rotación de alimentación | ±180° | |
| Carrera de compensación de avance | 480mm | |
| Pluma | Ángulo de inclinación | +50° / -30° |
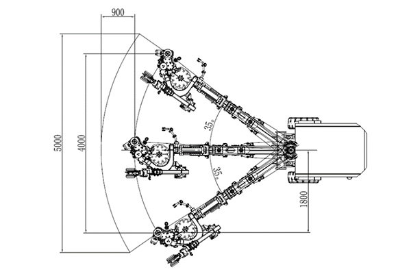
| Extensión de la pluma | 900mm | |
| Ángulo de giro | ±35° | |
| Chasis | Motor | Motor diésel Cummins Stage IV |
| Potencia de salida nominal (2400r/min) | 54kW | |
| Par | 320N.m | |
| Oscilación del eje trasero | 7° | |
| Ángulo de dirección | ±35° | |
| Sistema hidráulico | Percusión/desplazamiento | 100cc/32cc |
| Capacidad máxima del tanque de aceite | 100L | |
| Finura del filtro | 10μm | |
| Sensor de nivel de aceite: equipado | ||
| Enfriador de agua: equipado | ||
Huatai es una empresa china especializada en el diseño y la producción en serie de equipos de perforación de rocas. Desde nuestra creación en el año 2000, en Huatai nos hemos dedicado a la fabricación de productos de vanguardia y a proporcionar servicios integrales a varias empresas en los sectores de la minería, metalurgia e ingeniería de cimientos.
Huatai lleva 20 años innovando y desarrollándose en el sector de la minería subterránea y la perforación de rocas, superándose constantemente y llenando una serie de vacíos en el mercado chino. En la actualidad, nuestra gama de productos incluye más de 30 tipos de martillos mineros divididos en tres categorías principales, que son, equipos de minería subterránea, equipos de minería de carbón y máquinas para la perforación de pozos. A través de años de crecimiento y mejora continuos, hemos logrado ganar una buena reputación en la industria nacional de perforación de rocas, mejorando la seguridad, la eficiencia y la rentabilidad de los trabajos de minería subterránea y las operaciones de construcción de túneles.
El jumbo hidráulico de perforación de pozos GYSJZ es una máquina de perforación especializada y de alto rendimiento desarrollada para satisfacer las demandas de la excavación de pozos verticales profundos y de roca dura. La maquinaria de perforación está impulsada por un robusto motor de 132kW y equipada con tres derivadores hidráulicos de alta resistencia, lo que le permite manejar diámetros de perforación de 4 a 6 metros.
Más +
El jumbo de perforación de pozos YSJZ es una máquina de perforación de rocas diseñada específicamente para la construcción de pozos en minas de mineral de hierro y metales no ferrosos. El equipo de perforación de pozos es una excelente opción para proyectos de minería y construcción subterránea en los que no se puede recurrir a otros métodos de perforación debido a limitaciones técnicas o económicas.
Más +
La perforadora de eje vertical de la serie SJZ es un equipo diseñado especialmente para la perforación de barrenos para la construcción de pozos verticales. Es adecuada para perforar pozos de varios diámetros y se caracteriza por su funcionamiento flexible, su posicionamiento preciso, su seguridad y su fiabilidad.
Más +
Diseñada específicamente para formaciones rocosas de dureza media, el drifter hidráulico o martillo de perforación hidráulico RC600 ofrece una perforación potente y precisa en una amplia gama de aplicaciones exigentes.
Más +