El jumbo empernador hidráulico HT91-S es un equipo especializado diseñado para la instalación y el mantenimiento de pernos de cable en operaciones mineras subterráneas. Desempeña un papel vital en la estabilización de la roca circundante débil mediante el anclaje de los pernos de cable para crear una estructura portante unificada. Este refuerzo ayuda a distribuir las cargas estructurales y ofrece una fuerte resistencia a la tracción, reduciendo el riesgo de derrumbes de techos a gran escala y garantizando una excavación segura en entornos subterráneos.
Con su avanzado sistema hidráulico y su diseño robusto, este jumbo hidráulico de empernado ofrece un nuevo nivel de eficiencia y fiabilidad para los trabajos de sostenimiento de terreno en minas y túneles profundos.
Refuerce la estabilidad de su terreno subterráneo con una solución que fortalece terrenos débiles, simplifica el trabajo con pernos de cable y aporta seguridad y control a sus operaciones de sostenimiento.
| Plataforma de perforación | Cobertura de trabajo | 6000×7000mm |
| Dimensiones (transporte) | 10800×1980×2500mm | |
| Dimensiones (trabajo) | 11600×2670×3300mm | |
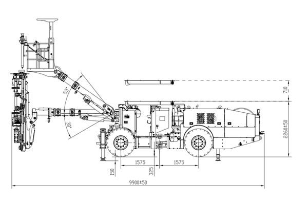
| Distancia al suelo | 325mm | |
| Radio de giro mínimo | Interior 3300mm Exterior 7000mm | |
| Gradeabilidad | 14° | |
| Velocidad de recorrido | ≤10km/h | |
| Peso | 19500±500kg | |
| Taladro de roca | Modelo | RC1200 |
| Potencia de impacto | 14kW | |
| Frecuencia de impacto | 100Hz | |
| Max. presión de impacto | 180bar | |
| Sistema de rotación | Rotación independiente | |
| Adaptador de vástago | R32 | |
| Diámetro del orificio de perforación | Ø32mm | |
| Alimentación | Longitud total | 3286mm |
| Carrera de alimentación | 975mm | |
| Fuerza de avance | 13kN | |
| Ángulo de inclinación de alimentación | Debajo de 90°, arriba de 5° | |
| Ángulo de giro de alimentación | ±180° | |
| Compensación de alimentación | 900mm | |
| Pluma | Extensión telescópica de la pluma | 1250mm |
| Ángulo de giro | ±35° | |
| Profundidad del orificio de perforación | 10000mm | |
| Longitud de la varilla de perforación | 1200/1700mm | |
| Sistema hidráulico | Máx. desplazamiento | 100+50+16ml/r |
| Potencia del motor principal (2500r/min) | 55kW | |
| Desplazamiento de aire (8bar) | 1m³/min | |
| Caudal de la bomba de agua (12bar) | 4m³/h | |
| Max. longitud del cable | 100m (diámetro 45mm aproximadamente) | |
| Chasis | Motor | Motor diésel Cummins |
| Potencia de salida nominal (2200r/min) | 81kW | |
| Par (1650r/min) | 480Nm | |
| Ángulo de giro de eje trasero | 8° | |
| Ángulo de dirección | 40° |
Huatai es una empresa china especializada en el diseño y la producción en serie de equipos de perforación de rocas. Desde nuestra creación en el año 2000, en Huatai nos hemos dedicado a la fabricación de productos de vanguardia y a proporcionar servicios integrales a varias empresas en los sectores de la minería, metalurgia e ingeniería de cimientos.
Huatai lleva 20 años innovando y desarrollándose en el sector de la minería subterránea y la perforación de rocas, superándose constantemente y llenando una serie de vacíos en el mercado chino. En la actualidad, nuestra gama de productos incluye más de 30 tipos de martillos mineros divididos en tres categorías principales, que son, equipos de minería subterránea, equipos de minería de carbón y máquinas para la perforación de pozos. A través de años de crecimiento y mejora continuos, hemos logrado ganar una buena reputación en la industria nacional de perforación de rocas, mejorando la seguridad, la eficiencia y la rentabilidad de los trabajos de minería subterránea y las operaciones de construcción de túneles.
El jumbo hidráulico de perforación de pozos GYSJZ es una máquina de perforación especializada y de alto rendimiento desarrollada para satisfacer las demandas de la excavación de pozos verticales profundos y de roca dura. La maquinaria de perforación está impulsada por un robusto motor de 132kW y equipada con tres derivadores hidráulicos de alta resistencia, lo que le permite manejar diámetros de perforación de 4 a 6 metros.
Más +
El jumbo de perforación de pozos YSJZ es una máquina de perforación de rocas diseñada específicamente para la construcción de pozos en minas de mineral de hierro y metales no ferrosos. El equipo de perforación de pozos es una excelente opción para proyectos de minería y construcción subterránea en los que no se puede recurrir a otros métodos de perforación debido a limitaciones técnicas o económicas.
Más +
La perforadora de eje vertical de la serie SJZ es un equipo diseñado especialmente para la perforación de barrenos para la construcción de pozos verticales. Es adecuada para perforar pozos de varios diámetros y se caracteriza por su funcionamiento flexible, su posicionamiento preciso, su seguridad y su fiabilidad.
Más +
Diseñada específicamente para formaciones rocosas de dureza media, el drifter hidráulico o martillo de perforación hidráulico RC600 ofrece una perforación potente y precisa en una amplia gama de aplicaciones exigentes.
Más +